Mietangebot: 4,5 - Zimmerwohnung (23)

Die Liegenschaft Zeughausstrasse 46 ist ein freistehendes Mehrfamilienhaus mit 10 Wohnungen.  Trotz einem hervorragenden Verkehrsanschluss (Entfernung ca. 0,7 km) an die Autobahn (25 Min. nach Zürich), befindet sich das Haus in der Nähe des Waldrands und eines Baches.

Ein grosses Angebot an diversen Lebensmittelgeschäften, Banken, Post, Apotheke, Drogerie, etc. bietet das unmittelbar in der Nähe gelegene Lachen.

 






Zeughausstrasse 46, 8854 Galgenen
Allgemeine Info's zur Liegenschaft

Lage

Strasse/Quartier: Zeughausstrasse 46
PLZ/Ort (Kanton): 8854 Galgenen (SZ)
Baujahr (Renovation): 1987
Region: Oberer Zürichsee, March
Gesamtsteuerfuss: 340 (Stand 21 (ohne Konf.))

Entfernungen in Minuten

Kindergarten: ca. 30 Min. zu Fuss
Unterstufe / Primar: ca. 10 Min. Fahrrad
Oberstufe: (Lachen) ca. 10 Min. Fahrrad 
Einkauf: (Lachen) ca. 5 Min. mit Auto
Marchbus: (Lachen) ca. 8 Min. zu Fuss
Post/Bank: (Lachen) ca. 5 Min. mit Auto

 

Wohnung

Miete Fr./Mt.: Preis
Nebenkosten Fr./Mt.: Preis
Verfügbar ab: Diese Wohnung ist zurzeit vermietet

zu den freien Wohnungen

Warteliste  

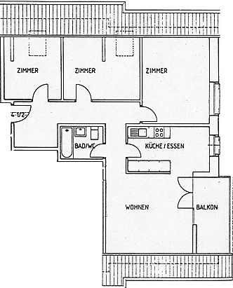
Anzahl Zimmer: 4,5
eff. Nettowohnfläche: 94.7 m2
Etage: 2. OG
Anzahl Dusche/WC:  
Anzahl Bad/WC: 1
Geschirrspüler (GS) 1
Waschturm:  
Cheminée:  
Balkon Süd:  1
Gartensitzplatz:  
Garagen: (Fr./Mt.) 100.--
Parkplätze: (Fr./Mt.) 30.--

 

Kontakt: Frau F. Gassmann
Tel.: (+41) 055 464 35 10
Fax: (+41) 055 464 35 01
E-Mail: immob@ruoss-kistler.ch
Adresse Verwaltung: RUOSS-KISTLER AG
Kantonsstrasse 55
8863 Buttikon

top          zurück zum Wohnungsmarkt (freie Wohnungen)


RUOSS-KISTLER AG, Buttikon

RUOSS-KISTLER AG; Tätigkeitsfelder: 1. Business Software; Barcode-Scanner, Kassensysteme (POS) u. USV; 2. Immobilienverwaltung (Wohnungen vermieten) Fremdverwaltung

 

 

 

RUOSS-KISTLER AG          / Tel. (+41) 055 464 35 00 /           Fax  (+41) 055 464 35 01

Copyright © 2025                                                                                                                                       Stand: 18. Dezember 2024