Mietangebot: 4,5-Maisonette-Wohnung (233)

Bei dieser Überbauung handelt es sich um drei Mehrfamilienhäuser, welche aneinander gebaut sind und im steuergünstigen Kanton Schwyz (Zentrum Buttikon) liegen (30 Min. von Zürich). Die Häuser verfügen je über einen Fahrradraum, Waschküche, Kellerabteil, Tiefgarage, (Direktzugang zu jedem Haus) Parkplätze vor dem Haus, Kinderspielplatz, Gartenhaus mit Aussencheminée und Festbänken zur freien Verfügung.

Das Dorf Buttikon verfügt über Lebensmittelgeschäfte wie Spar und Denner Satellit, Metzgerei, Bäckerei/Konditorei, Post und Apotheke.

Das Naherholungsgebiet Linthebene, mit seinen herrlichen Rad-, Skater- und Wanderwegen, ist in wenigen Gehminuten erreichbar.

 






Allgemeine Info's zur Liegenschaft

Lage

Strasse/Quartier: Kirchweg 4
PLZ/Ort (Kanton): 8863 Buttikon (SZ)
Baujahr : 1991
Region: Oberer Zürichsee, March
Gesamtsteuerfuss: 375 (Stand 21 (ohne Konf.))

Entfernungen in Minuten

Kindergarten: ca. 1 Min. zu Fuss
Unterstufe / Primar: ca. 1 Min. zu Fuss
Oberstufe: ca. 8 Min. zu Fuss
Einkauf:  ca. 5 Min. zu Fuss
Marchbus (Schulbus):  ca. 1 Min. zu Fuss
Post:  ca. 3 Min. zu Fuss

 

Wohnung

 

Miete Fr./Mt.: Preis
Nebenkosten Fr./Mt.: Preis
Verfügbar ab: Diese Wohnung ist zurzeit vermietet

zu den freien Wohnungen

Warteliste  

Anzahl Zimmer: 4,5
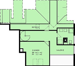
eff. Nettowohnfläche: 146,4 m2
Etage: 3./4. Stock
Anzahl Dusche/WC: 1
Anzahl Bad/WC: 1
Waschturm: 1
Cheminée: 1
Balkon: 1
Gartensitzplatz:  
Garagen: (Fr./Mt.) 100.--
Parkplätze: (Fr./Mt.) 50.--

 

Bild oben 3. Stock; Bild unten 4. Stock

Kontaktperson: Frau F. Gassmann
Tel.: (+41) 055 464 35 10
Fax: (+41) 055 464 35 01
E-Mail: immob@ruoss-kistler.ch
Adresse Verwaltung: RUOSS-KISTLER AG
Kantonsstrasse 55
8863 Buttikon

top          zurück zum Wohnungsmarkt (freie Wohnungen)


RUOSS-KISTLER AG, Buttikon

RUOSS-KISTLER AG; Tätigkeitsfelder: 1. Business Software; Barcode-Scanner, Kassensysteme (POS) u. USV; 2. Immobilienverwaltung (Wohnungen vermieten) Fremdverwaltung

 

 

 

RUOSS-KISTLER AG          / Tel. (+41) 055 464 35 00 /           Fax  (+41) 055 464 35 01

Copyright © 2025                                                                                                                                       Stand: 18. Dezember 2024